These manuals are used in the inspection and repair of electrical circuits. The separate wiring manual for each model contains circuit diagrams of each electrical system, wiring route diagrams and diagrams showing the location of relays, etc.
CONTENTS:
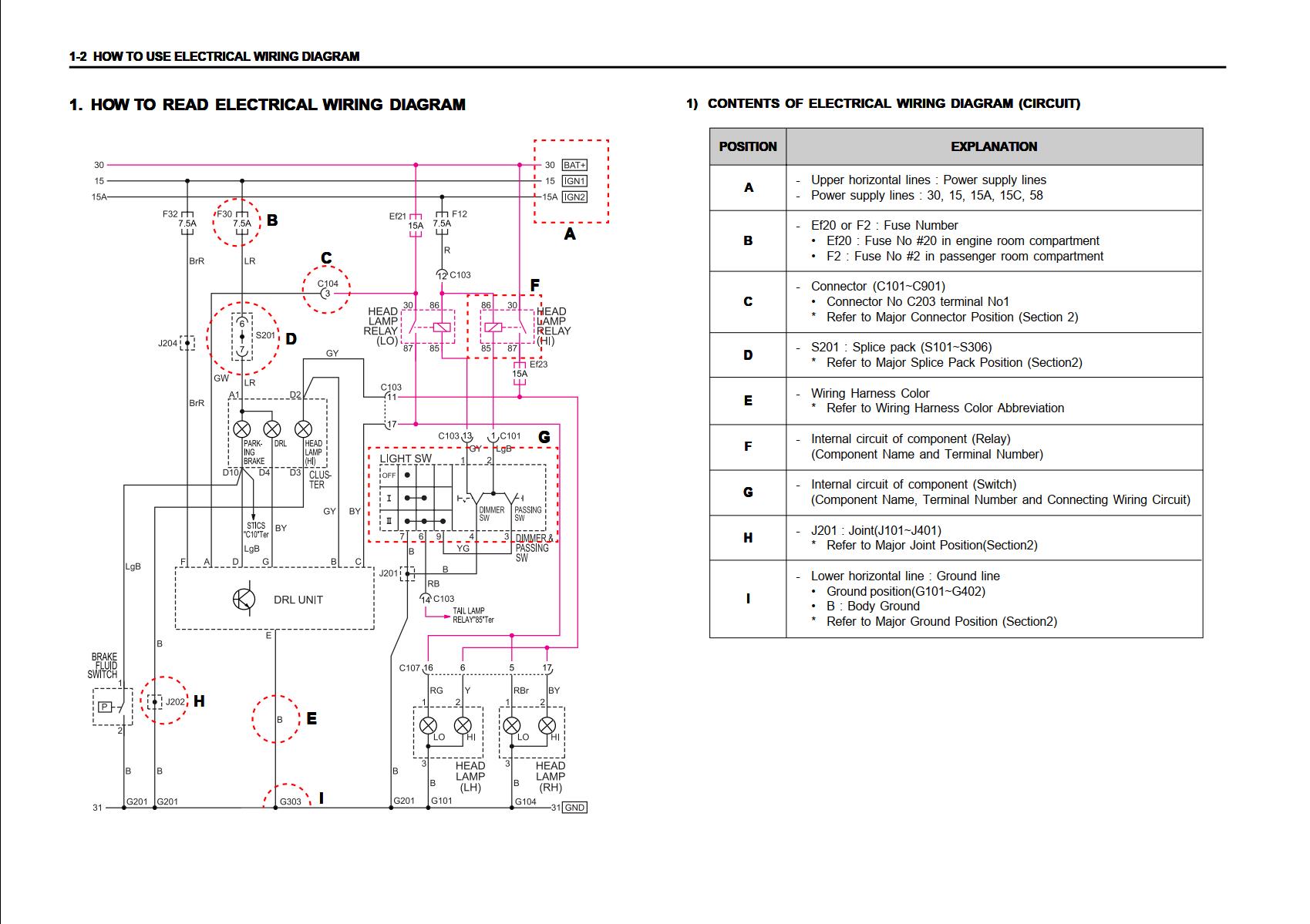
HOW TO USE ELECTRICAL WIRING DIAGRAM
- HOW TO READ ELECTRICAL WIRING DIAGRAM
- CIRCUIT IDENTIFICATION SYMBOL
- FUNCTION OF POWER SUPPLY LINE
- WIRING HARNESS COLOR IDENTIFICATION
- HOW TO CHECK TERMINAL NUMBER OF CONNECTOR
POSITION OF CONNECTORS AND GROUNDS
- POSITION OF CONNECTOR, GROUND, SPLICE PACK
- CONNECTOR, GROUND SPLICE PACK & JOINT INFORMATION
- WIRING HARNESS & CONNECTOR & GROUND LOCATION
WIRING DIAGRAM FOR POWER SUPPLIES
- IGNITION SWITCH CIRCUIT
- 30 TER BAT+ POWER SUPPLY CIRCUIT (PASSENGER ROOM FUSE BOX)
- 15A IGN 2 , 15C ACC POWER SUPPLY CIRCUIT (PASSENGER ROOM FUSE BOX)
- 15 TER IGN 1 POWER SUPPLY CIRCUIT (PASSENGER ROOM FUSE BOX)
- ENGINE ROOM FUSE & RELAY CIRCUIT
USAGE AND CAPACITY OF FUSES IN FUSE BOX
- ENGINE ROOM FUSE & RELAY BOX
- PASSENGER ROOM FUSE BOX
- PASSENGER ROOM RELAY BOX
ELECTRICAL WIRING DIAGRAMS
- STARTING & CHARGING SYSTEM
- DIAGNOSIS CONNECTOR
- PRE-HEATING SYSTEM
- EGR (EXHAUST GAS RECIRCULATION) SYSTEM
- ECM (ELECTRONIC CONTROL MODULE) : E23 MSE
- ECM (ELECTRONIC CONTROL MODULE) : E32 MSE
- TCM (TRASMISSION CONTROL MODULE) – DIESEL
- TCM (TRASMISSION CONTROL MODULE) – GASOLINE
- ABS (ANTI-LOCK BRAKE SYSTEM)
- ABS/ABD (AUTOMATIC BRAKE DIFFERENTIAL LOCK): DIESEL
- ABS/ABD (AUTOMATIC BRAKE DIFFERENTIAL LOCK): GASOLINE
- ABS/ABD (AUTOMATIC BRAKE DIFFERENTIAL LOCK): EURO III
- TCCU
- TOD (TORQUE ON DEMAND)
- MANUAL AIR CONDITIONING SYSTEM : DIESEL, GASOLINE
- AIR BAG (SDM : SENSING & DIAGNOSIS MODULE)
- SEAT BELT & TENSION REDUCER
- CLUSTER
- STICS(SUPER TIME & ALARM INTEGRATED CONTROL SYSTEM)
- SEAT HEATER
- STOP LAMP, BTSI (BRAKE TRANSMISSION SHIFT INTERLOCK)
- POWER WINDOW
- ELECTRIC OSRV (OUTSIDE REAR VIEW) MIRROR
- REAR WIPER & WASHER
- CIGARETTE LIGHTER, HORN
- HEAD LAMP
- HEAD LAMP LEVELING DEVICE (HLLD)
- TURN SIGNAL LAMP
- TAIL LAMP RELAY CIRCUIT
- FRONT FOG LAMP
- REAR FOG LAMP
- INSIDE REAR VIEW MIRROR(DIMMING) & BACK-UP LAMP
- AUDIO
- IMMOBILIZER SYSTEM (DIESEL : VDO)
Language: English
Format: PDF
Pages: 24
