In this article we take a look at the Ford Focus Electric based on the Focus Mark III, produced from 2012 to 2018. Here you will find the Ford Focus 2012, 2013, 2016, 2017 and 2018 fuse box diagrams, information on the location of the fuse boxes in the car and the allocation of each fuse (fuse layout) and relay.
The cigar lighter (socket) fuse is fuse №61 (front cigar lighter socket, rear auxiliary power points) in the instrument panel fuse box.
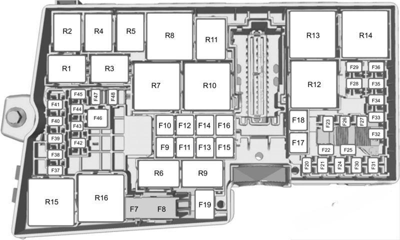
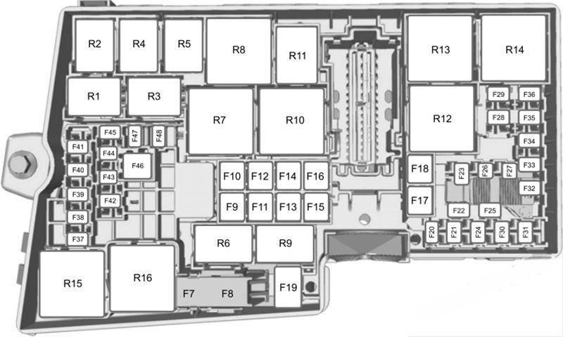
Fuse box location
Passenger compartment
The fuse panel is located on the right side below the glove box.

Engine compartment
The power distribution box is located in the engine compartment.

Pre-Fuse Box
It is located in the electric motor compartment on the front of the 12-volt battery box. It is connected to the 12-volt battery positive terminal.
Luggage compartment
The fuse panel is located in the luggage compartment behind the left side wheel well.


Fuse box diagrams
2012, 2013
Passenger compartment

Assignment of the fuses in the Passenger compartment (2012, 2013)
| № | Amp Rating | Protected Components |
|---|---|---|
| 56 | 20A | Not used (spare) |
| 57 | — | Not used |
| 58 | — | Not used |
| 59 | 5A | Passive anti-theft transceiver |
| 60 | 10A | Interior light, Driver door switch pack, Glove box illumination, Overhead console switch bank |
| 61 | 20A | Cigar lighter, Power point |
| 62 | 5A | Rain sensor module |
| 63 | — | Not used |
| 64 | — | Not used |
| 65 | 10A | Liftgate release |
| 66 | 20A | Not used (spare) |
| 67 | 7.5A | SYNC®, Multifunction display, Global positioning system module, Compass |
| 68 | — | Not used |
| 69 | 5A | Instrument cluster |
| 70 | 20A | Central lock and unlock supply |
| 71 | 10A | Climate control |
| 72 | 7.5A | Steering wheel module |
| 73 | 5A | Datalink connector |
| 74 | 15A | Low beam headlamp supply |
| 75 | 15A | Not used (spare) |
| 76 | 10A | Reversing lamp supply, Electrochromatic rear view mirror |
| 77 | 20A | Windshield and rear washer supply |
| 78 | 5A | Ignition switch, Start button |
| 79 | 15A | Radio, Hazard light switch, Door lock switch, Electronic finish panel |
| 80 | 20A | Not used (spare) |
| 81 | 5A | Radio frequency receiver |
| 82 | 20A | Windshield and rear washer relay |
| 83 | 20A | Central locking |
| 84 | 20A | Unlock supply, Double lock |
| 85 | 7.5A | Front seat heater switch |
| 86 | 10A | Airbag module, Occupant classification sensor, Passenger airbag deactivation indicator |
| 87 | — | Not used |
| 88 | — | Not used |
| 89 | — | Not used |
Engine compartment

Assignment of the fuses in the Power distribution box (2012, 2013)
| № | Amp Rating | Protected Circuits |
|---|---|---|
| F1 | — | Not used |
| F2 | — | Not used |
| F3 | — | Not used |
| F4 | — | Not used |
| F5 | — | Not used |
| F6 | — | Not used |
| F7 | 40A** | Anti-lock brakes pump |
| F8 | 30A** | Anti-lock brakes valve |
| F9 | — | Not used |
| F10 | 40A** | Heater blower motor, Temperature sensor |
| F11 | 40A** | Vacuum pump |
| F12 | 40A** | Motor control relay fuse |
| F13 | 40A** | On-board charger |
| F14 | 40A** | Heater element 1 |
| F15 | — | Not used |
| F16 | 40A** | Heater element 2 |
| F17 | — | Not used |
| F18 | 20A** | Front wiper motor |
| F19 | 5A* | Anti-lock brake control module |
| F20 | 15 A* | Horn |
| F21 | 5A* | Stop light switch |
| F22 | 15 A* | Battery monitoring sensor |
| F23 | 5A* | Relay coils |
| F24 | 5A* | Light switch module |
| F25 | — | Not used |
| F26 | 10 A* | Powertrain Control Module (PCM) |
| F27 | 15 A* | Charger port light ring |
| F28 | 5A* | Vacuum pump monitor |
| F29 | — | Not used |
| F30 | 5A* | Transmission control module |
| F31 | 10 A* | Smart datalink connector; Diagnostic connector |
| F32 | 10 A* | Compressor bypass valves, Coolant valves, Electronic fan control module relay |
| F33 | 10 A* | PCM (PSR feedback), A/C compressor solenoid |
| F34 | 15 A* | PCM (contactor sense), Battery electronics control module (PSR) |
| F35 | — | Not used |
| F36 | 20 A* | Coolant water pumps |
| F37 | 5A* | Vehicle audible speaker for pedestrians |
| F38 | 15 A* | PCM (electronic control module KL15) |
| F39 | 5A* | Not used (spare) |
| F40 | 5A* | Electronic power assist steering |
| F41 | 20A* | Body Control Module (BCM) |
| F42 | 15 A* | Rear wiper |
| F43 | 15 A* | Not used (spare) |
| F44 | — | Not used |
| F45 | — | Not used |
| F46 | — | Not used |
| F47 | 5A* | In-Car temperature sensor |
| F48 | 5A* | Mechanical relay |
| R1 | — | Not used |
| R2 | Micro relay | Horn relay |
| R3 | — | Not used |
| R4 | Micro relay | Contactor relay |
| R5 | — | Not used |
| R6 | — | Not used |
| R7 | Power relay | Heater element 3 |
| R8 | Power relay | Heater element 1 & 2 |
| R9 | — | Not used |
| R10 | Mini relay | ABS vacuum pump (solid state relay) |
| R11 | — | Not used |
| R12 | Power relay | Electronic Fan Control Module (EFCM) relay |
| R13 | Mini relay | Heater blower relay |
| R14 | Mini relay | Motor control relay |
| R15 | Power relay | Mechanical relay |
| R16 | Power relay | Ignition 15 |
| * Mini Fuses ** Cartridge Fuses |
Luggage compartment

Assignment of the fuses in the Luggage compartment (2012, 2013)
| № | Amp Rating | Protected Components |
|---|---|---|
| F1 | 5A | Telematics control unit |
| F2 | 10A | Keyless vehicle module |
| F3 | 5A | Keyless vehicle door handles |
| F4 | 25A | Door control unit – front left |
| F5 | 25A | Door control unit – front right |
| F6 | 25A | Door control unit – rear left |
| F7 | 25A | Door control unit – rear right |
| F8 | — | Not used |
| F9 | 25A | Driver seat motor |
| F10 | 25A | Rear window defroster |
| F11 | 5A | Battery electronics control module |
| F12 | — | Not used |
| F13 | — | Not used |
| F14 | — | Not used |
| F15 | — | Not used |
| F16 | — | Not used |
| F17 | — | Not used |
| F18 | — | Not used |
| F19 | — | Not used |
| F20 | — | Not used |
| F21 | — | Not used |
| F22 | — | Not used |
| F23 | — | Not used |
| F24 | — | Not used |
| F25 | — | Not used |
| F26 | — | Not used |
| F27 | — | Not used |
| F28 | — | Not used |
| F29 | 5A | Park assist camera |
| F30 | 5A | Parking aid module |
| F31 | — | Not used |
| F32 | — | Not used |
| F33 | — | Not used |
| F34 | 15A | Driver seat heater |
| F35 | 15A | Passenger seat heater |
| F36 | — | Not used |
| F37 | — | Not used |
| F38 | — | Not used |
| F39 | — | Not used |
| F40 | — | Not used |
| F41 | — | Not used |
| F42 | — | Not used |
| F43 | — | Not used |
| F44 | — | Not used |
| F45 | — | Not used |
| F46 | — | Not used |
| R1 | — | Rear 15 relay |
| R2 | — | Rear window defrost relay |
| R3 | — | Rear wiper relay |
| R4 | — | Not used |
| R5 | — | Not used |
| R6 | — | Not used |
2016
Passenger compartment

Assignment of the fuses in the Passenger compartment (2016)
| № | Amp Rating | Circuits protected |
|---|---|---|
| F56 | – | Not used. |
| F57 | – | Not used. |
| F58 | – | Not used. |
| F59 | – | Not used. |
| F60 | 10A | Interior lamp. Driver door switch pack. Glove compartment lamp. Ambient lighting lamp. |
| F61 | 20A | Front cigar lighter socket. Rear auxiliary power points. |
| F62 | – | Not used. |
| F63 | – | Not used. |
| F64 | – | Not used. |
| F65 | 10A | Luggage compartment lid release. |
| F66 | – | Not used. |
| F67 | 7.5 A | Global positioning sensor. SYNC. |
| F68 | – | Not used. |
| F69 | 5A | Instrument panel cluster. |
| F70 | – | Not used. |
| F71 | 7.5 A | Air conditioning. |
| F72 | 7.5 A | Steering wheel control module. |
| F73 | 7.5 A | Smart data link module. |
| F74 | 15A | High beam headlamp. |
| F75 | – | Not used. |
| F76 | 10A | Reversing lamp. |
| F77 | 20A | Washer pump. |
| F78 | 5A | Push button ignition switch. Keyless vehicle module (supply). |
| F79 | 15A | Audio unit. Hazard flasher switch. |
| F80 | – | Not used. |
| F81 | 5A | Radio frequency receiver. |
| F82 | 20A | Ground fuse (front washer pump relay supply). Ground fuse (rear washer pump relay supply). |
| F83 | 20A | Ground fuse (central lock supply). Ground fuse (central unlock supply). |
| F84 | 20A | Ground fuse (driver door unlock relay supply). Ground fuse (central/double lock relay supply). Ground fuse (release relay supply). |
| F85 | 7.5 A | Heated seats switch. |
| F86 | 10A | Restraint system. Passenger airbag deactivation switch. Occupant weight sensor. |
| F87 | – | Not used. |
| F88 | – | Not used. |
| F89 | – | Not used. |
Engine compartment

Assignment of the fuses in the Power distribution box (2016)
| № | Amp Rating | Circuits protected |
|---|---|---|
| F7 | 40A | Anti-lock brake system. Stability control (KL30V). |
| F8 | 30A | Anti-lock brake system. Stability control (KL30P). |
| F9 | – | Not used. |
| F10 | 40A | Blower motor module. |
| F11 | 40A | Brake vacuum pump. |
| F12 | 40A | Electric motor control relay. |
| F13 | 40A | Battery charging control module. |
| F14 | 40A | Coolant heater one. |
| F15 | 30A | Body control module (KL30C supply). |
| F16 | 40A | Coolant heater two. |
| F17 | – | Not used. |
| F18 | 20A | Windshield wiper. |
| F19 | 5A | Anti-lock brake system. Stability control (KL15). |
| F20 | 15 A | Horn. |
| F21 | 5A | Stop lamp switch. |
| F22 | 15 A | Battery monitoring system. |
| F23 | 5A | Relay coils. |
| F24 | 5A | Lighting control switch module. |
| F25 | – | Not used. |
| F26 | 10A | Powertrain control module. |
| F27 | 15 A | Charge port light ring. |
| F28 | 5A | Vacuum pump monitor. |
| F29 | – | Not used. |
| F30 | 5A | Transmission control module (12V supply). |
| F31 | 10A | Smart data link/on-board diagnostic connector. |
| F32 | 10A | Coolant valve. Air conditioning solenoid. Chiller solenoid. |
| F33 | 10A | Powertrain control module. A/C compressor PSR feedback. |
| F34 | 15 A | High voltage battery. |
| F35 | – | Not used. |
| F36 | 20A | Coolant pump. |
| F37 | 5A | Vehicle audible signal for pedestrians. |
| F38 | 15 A | Powertrain control module (KL15 supply). |
| F39 | 15 A | Heated driver’s seat. |
| F40 | 5A | Electronic power assist steering. |
| F41 | 20A | Body control module (KL15 supply). |
| F42 | 15A | Rear wiper motor. |
| F43 | 15A | Daytime running light. |
| F44 | – | Not used. |
| F45 | 15A | Heated passenger seat. |
| F46 | – | Not used. |
| F47 | – | Not used. |
| F48 | 5A | Mechanical relay coil. |
| Relay | ||
| R1 | – | Not used. |
| R2 | Micro relay | Horn. |
| R3 | – | Not used. |
| R4 | Micro relay | High voltage battery. Engine control module (contactor sense). |
| R5 | – | Not used. |
| R6 | – | Not used. |
| R7 | Power relay | Coolant heater element three. |
| R8 | Power relay | Coolant heater element one and two. |
| R9 | – | Not used. |
| R10 | Mini relay | Brake vacuum pump. |
| R11 | – | Not used. |
| R12 | Power relay | Electronic fan control module. |
| R13 | Mini relay | Blower motor. |
| R14 | Mini relay | Electric motor control. |
| R15 | Power relay | Brake vacuum pump mechanical relay. |
| R16 | Power relay | Ignition. |
Assignment of the fuses in the Pre-Fuse Box
| № | Amp Rating | Circuits protected |
|---|---|---|
| F1 | 80A | Electronic power assist steering. |
| F2 | 150A | DC/DC converter. |
| F3 | 100A | Power distribution box. |
| F4 | 50A | Body control module (KL30A supply). |
| F5 | 70A | High voltage battery coolant element one and two. |
| F6 | 70A | Load compartment fuse box. |
| F7 | – | Not used. |
| F8 | 50A | Electric fan control module. |
| F9 | 50A | Body control module (KL30B supply). |
| F10 | 40A | High voltage battery coolant element three. |
Luggage compartment

Assignment of the fuses in the Luggage compartment (2016)
| № | Amp Rating | Circuits protected |
|---|---|---|
| F1 | 5A | Cellphone passport module. |
| F2 | – | Not used. |
| F3 | 5A | Keyless vehicle door handles. |
| F4 | 25A | Front power window (left). Central locking (front left). Heated exterior mirror (left). |
| F5 | 25 A | Front power window (right). Central locking (front right). Heated exterior mirror (right). |
| F6 | 25 A | Rear left door module (KL30 supply). |
| F7 | 25A | Rear right door module (KL30 supply). |
| F8 | 5A | Ignition relay. |
| F9 | 25 A | Driver power seat. |
| F10 | 25 A | Heated rear window. |
| F11 | 5A | High voltage battery (12V B+). |
| F12 | – | Not used. |
| F13 | – | Not used. |
| F14 | – | Not used. |
| F15 | – | Not used. |
| F16 | – | Not used. |
| F17 | – | Not used. |
| F18 | – | Not used. |
| F19 | – | Not used. |
| F20 | – | Not used. |
| F21 | – | Not used. |
| F22 | – | Not used. |
| F23 | – | Not used. |
| F24 | – | Not used. |
| F25 | – | Not used. |
| F26 | – | Not used. |
| F27 | – | Not used. |
| F28 | – | Not used. |
| F29 | 5A | Rearview camera. |
| F30 | 5A | Parking aid module. |
| F31 | – | Not used. |
| F32 | – | Not used. |
| F33 | – | Not used. |
| F34 | – | Not used. |
| F35 | – | Not used. |
| F36 | – | Not used. |
| F37 | – | Not used. |
| F38 | – | Not used. |
| F39 | – | Not used. |
| F40 | – | Not used. |
| F41 | – | Not used. |
| F42 | – | Not used. |
| F43 | – | Not used. |
| F44 | – | Not used. |
| F45 | – | Not used. |
| F46 | – | Not used. |
| Relay | ||
| R1 | Power relay | Rear KL15E. |
| R2 | Mini relay | Heated rear window. |
| R3 | Micro relay | Rear window wiper. |
| R4 | – | Not used. |
| R5 | – | Not used. |
| R6 | – | Not used. |
2017, 2018
Passenger compartment

Assignment of the fuses in the Passenger compartment (2017, 2018)
| № | Amp Rating | Protected Component |
|---|---|---|
| F56 | 20A | Not used (spare). |
| F57 | – | Not used. |
| F58 | – | Not used. |
| F59 | 5A | Not used (spare). |
| F60 | 10A | Interior lamp. Driver door switch pack. Glove compartment lamp. Ambient lighting lamp. |
| F61 | 20A | Front cigar lighter socket. Rear auxiliary power points. |
| F62 | 5A | Not used (spare). |
| F63 | – | Not used. |
| F64 | – | Not used. |
| F65 | 10A | Luggage compartment lid release. |
| F66 | 20A | Not used (spare). |
| F67 | 7.5 A | Global positioning sensor. SYNC module. |
| F68 | – | Not used. |
| F69 | 5A | Instrument panel cluster. |
| F70 | 20A | Not used (spare). |
| F71 | 7.5 A | Air conditioning. |
| F72 | 7.5 A | Steering wheel control module. |
| F73 | 7.5 A | Smart data link module. |
| F74 | 15A | High beam headlamp. |
| F75 | 15A | Not used (spare). |
| F76 | 10A | Reversing lamp. |
| F77 | 20A | Washer pump. |
| F78 | 5A | Push button ignition switch. Keyless vehicle module (supply). |
| F79 | 15A | Audio unit. Hazard flasher switch. |
| F80 | 20A | Not used (spare). |
| F81 | 5A | Radio frequency receiver. |
| F82 | 20A | Ground fuse (front washer pump relay supply). Ground fuse (rear washer pump relay supply). |
| F83 | 20A | Ground fuse (central lock supply). Ground fuse (central unlock supply). |
| F84 | 20A | Ground fuse (driver door unlock relay supply). Ground fuse (central/double lock relay supply). Ground fuse (release relay supply). |
| F85 | 7.5 A | Heated seats (ignition sense). |
| F86 | 10A | Restraint system. Passenger airbag deactivation switch. Occupant weight sensor. |
| F87 | 15A | Not used (spare). |
| F88 | – | Not used. |
| F89 | – | Not used. |
Engine compartment

Assignment of the fuses in the Power distribution box (2017, 2018)
| № | Amp Rating | Protected Component |
|---|---|---|
| F7 | 40A | Anti-lock brake system. Stability control (KL30V). |
| F8 | 30A | Anti-lock brake system. Stability control (KL30P). |
| F9 | – | Not used. |
| F10 | 40A | Blower motor module. |
| F11 | 40A | Brake vacuum pump relay. |
| F12 | 40A | Electric motor control relay. |
| F13 | 40A | Battery charging control module. |
| F14 | 40A | Coolant heater one. |
| F15 | 30A | Body control module (KL30C supply). |
| F16 | 40A | Coolant heater two. |
| F17 | – | Not used. |
| F18 | 20A | Windshield wiper. |
| F19 | 5A | Anti-lock brake system. Stability control (KL15). |
| F20 | 15 A | Horn. |
| F21 | 5A | Stop lamp switch. |
| F22 | 15 A | Battery monitoring system. |
| F23 | 5A | Relay coils. |
| F24 | 5A | Lighting control switch module. |
| F25 | – | Not used. |
| F26 | 10A | Powertrain control module. |
| F27 | 15 A | Charge port light ring. |
| F28 | 5A | Vacuum pump monitor. |
| F29 | – | Not used. |
| F30 | 5A | Transmission control module (12V supply). |
| F31 | 10A | Smart data link/on-board diagnostic connector. |
| F32 | 10A | Coolant valve. Air conditioning solenoid. Chiller solenoid. |
| F33 | 10A | Powertrain control module. A/C compressor PSR feedback. |
| F34 | 15 A | High voltage battery. |
| F35 | 5A | Electric vehicle communication controller. |
| F36 | 20A | Coolant pump. |
| F37 | 5A | Vehicle audible signal for pedestrians. |
| F38 | 15 A | Powertrain control module (KL15 supply). |
| F39 | – | Not used. |
| F40 | 5A | Electronic power assist steering. |
| F41 | 20A | Body control module (KL15 supply). |
| F42 | 15A | Rear wiper motor. |
| F43 | 15A | Daytime running light. |
| F44 | – | Not used. |
| F45 | – | Not used. |
| F46 | – | Not used. |
| F47 | – | Not used. |
| F48 | 5A | Mechanical relay coil. |
| Relay | ||
| R1 | Not used. | |
| R2 | Horn. | |
| R3 | Not used. | |
| R4 | High voltage battery. Engine control module (contactor sense). | |
| R5 | Not used. | |
| R6 | Not used. | |
| R7 | Coolant heater element three. | |
| R8 | Coolant heater element one and two. | |
| R9 | Not used. | |
| R10 | Brake vacuum pump. | |
| R11 | Not used. | |
| R12 | Electronic fan control module. | |
| R13 | Blower motor. | |
| R14 | Electric motor control. | |
| R15 | Brake vacuum pump mechanical relay. | |
| R16 | Ignition. |
Assignment of the fuses in the Pre-Fuse Box
| № | Amp Rating | Circuits protected |
|---|---|---|
| F1 | 80A | Electronic power assist steering. |
| F2 | 150A | DC/DC converter. |
| F3 | 100A | Power distribution box. |
| F4 | 50A | Body control module (KL30A supply). |
| F5 | 70A | High voltage battery coolant element one and two. |
| F6 | 70A | Load compartment fuse box. |
| F7 | – | Not used. |
| F8 | 50A | Electric fan control module. |
| F9 | 50A | Body control module (KL30B supply). |
| F10 | 40A | High voltage battery coolant element three. |
Luggage compartment

Assignment of the fuses in the Luggage compartment (2017, 2018)
| № | Amp Rating | Protected Component |
|---|---|---|
| F1 | 5A | Cellphone passport module. |
| F2 | – | Not used. |
| F3 | 5A | Keyless vehicle door handles. |
| F4 | 25A | Left-hand front power windows. Left-hand heated exterior mirror. Left-hand power door lock. |
| F5 | 25A | Right-hand front power windows. Right-hand power door lock. Right-hand heated exterior mirror. |
| F6 | 25A | Rear left door module (KL30 supply). |
| F7 | 25A | Rear right door module (KL30 supply). |
| F8 | 5A | Ignition relay. |
| F9 | 25A | Driver power seat. |
| F10 | 25A | Heated rear window. |
| F11 | 5A | High voltage battery (12V B+). |
| F12 | – | Not used. |
| F13 | – | Not used. |
| F14 | – | Not used. |
| F15 | – | Not used. |
| F16 | – | Not used. |
| F17 | – | Not used. |
| F18 | – | Not used. |
| F19 | – | Not used. |
| F20 | – | Not used. |
| F21 | – | Not used. |
| F22 | – | Not used. |
| F23 | – | Not used. |
| F24 | – | Not used. |
| F25 | – | Not used. |
| F26 | – | Not used. |
| F27 | – | Not used. |
| F28 | – | Not used. |
| F29 | 5A | Rearview camera. |
| F30 | 5A | Parking assist control module. |
| F31 | – | Not used. |
| F32 | – | Not used. |
| F33 | – | Not used. |
| F34 | 15 A | Driver heated seat. |
| F35 | 15 A | Passenger heated seat. |
| F36 | – | Not used. |
| F37 | – | Not used. |
| F38 | – | Not used. |
| F39 | – | Not used. |
| F40 | – | Not used. |
| F41 | – | Not used. |
| F42 | – | Not used. |
| F43 | – | Not used. |
| F44 | – | Not used. |
| F45 | – | Not used. |
| F46 | – | Not used. |
| Relay | ||
| R1 | Air conditioning control module. Heated front seats. Rearview camera. Parking assist control module. | |
| R2 | Heated rear window. | |
| R3 | Rear window wiper. | |
| R4 | Not used. | |
| R5 | Not used. | |
| R6 | Not used. |


