In this article you will be able to find the 2007, 2008, 2009, 2010, 2011, 2012, 2013, 2014, 2015, 2016 and 2017 Fiat Strada fuse box images, as well as information on the location of the fuse boxes inside the car and the allocation of each fuse (fuse layout).
The Fiat Strada’s cigar lighter (socket) fuse is F44, located in the instrument panel fuse box.
Buse Box Location
Engine Compartment
The fuse box is located in the engine compartment (right-hand side).

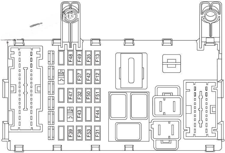
Passenger Compartment
The fuse box is located on the left side of the instrument panel, behind the storage compartment.

Fuse box diagrams
Engine compartment

Assignment of the fuses in the Engine compartment
| № | Ampere rating | Device protected |
|---|---|---|
| F00 | 60 | Plug preheating |
| F01 | 70 | Dashboard fuse box – basic |
| F02 | 40 | Dashboard fuse box – optional |
| F03 | 20 | Ignition switch |
| F04 | 50 | Anti-slip system |
| F06 | 30/40 | Single speed – Radiator fan first speed |
| F07 | 40/60 | Single speed – Radiator fan second speed |
| F08 | 40 | Climate control fan |
| F10 | 15 | Horn |
| F11 | 15 | Speedometer generator, canister solenoid valve, preheating control unit secondary loads, engine management system |
| F14 | 10 | Right main beam headlight |
| F15 | 10 | Left main beam headlight |
| F16 | 7,5 | Engine management control unit, engine management system relay switch, engine cooling system remote control switch |
| F17 | 10 | Engine management control unit (supply), diesel pump solenoid valve unit |
| F18 | 7,5 | Engine management control unit |
| F19 | 7,5 | Climate control compressor |
| F20 | 20 | Heated filter |
| F21 | 15 | Fuel pump, cut-off system |
| F23 | 15 | Additional headlights |
| F24 | 10 | Ignition-operated +15 positive pole |
| F30 | 15 | Fog lights |
Passenger compartment

Assignment of the fuses in the Dashboard Fuse box
| № | Ampere ratting [A] | Device protected |
|---|---|---|
| F12 | 15 | Right dipped headlight |
| F13 | 15 | Left dipped headlight headlight alignment corrector |
| F31 | 7,5 | Supply for reversing light relay switch coils on engine compartment fuse box, manual climate control system |
| F32 | 15 | +30 exterior lighting control supply |
| F35 | 10 | Brake light switch supply (NC signal) |
| F37 | 10 | Brake lights, instrument panel node |
| F3S | 20 | Central locking |
| F39 | 15 | +30 supply for roof light glove compartment light, radio |
| F42 | 7,5 | ABS control unit |
| F43 | 30 | Windscreen wiper, two-way pump |
| F44 | 20 | Power socket – cigar lighter |
| F47 | 30 | Front left electric window |
| F48 | 30 | Front right electric window |
| F49 | 7,5 | +15 services supply for radio, electric mirrors, central and side control panel lighting, electric mirror control lighting |
| F50 | 7,5 | Airbag system |
| F51 | 7,5 | + supply for number plate lights, heater control lighting, power socket – cigar lighter lighting, radio lighting |
| F53 | 10 | Direction indicators, hazard warning lights, instrument panel node |


