In this article we take a look at the second-generation Dodge Sprinter, produced from 2007 to 2010. Here you can find the 2007, 2008, 2009 and 2010 Dodge Sprinter fuse box images, get information about the location of the fuse boxes inside the car and learn about the allocation of each fuse (fuse layout).
Information from the 2007 owner’s manual is used. The location and function of the fuses in vehicles manufactured at other times may differ.
The fuses for the cigarette lighter (socket) in the Dodge Sprinter are fuses №13 (cigarette lighter), №25 (12V socket on underside of centre console) in the instrument panel fuse box and №23 (12V socket rear left, cargo/passenger area), №24 (12V socket under driver’s seat) and №24 (12V socket rear right, cargo/passenger area) in the fuse box under the driver’s seat.
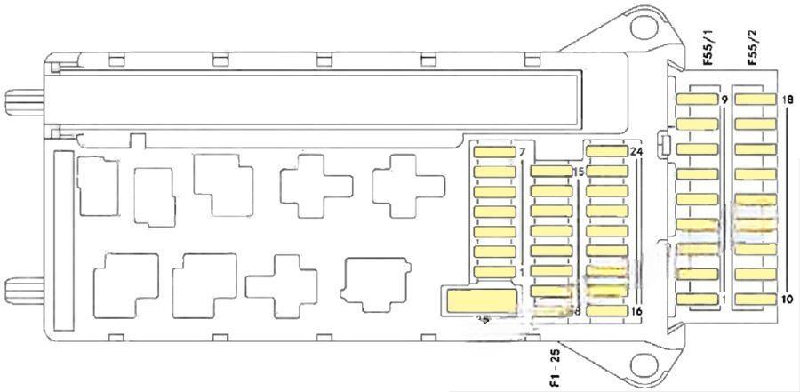
Instrument Panel Fuse Box (Main fuse box)
Fuse box location
It is located under the instrument panel (on the driver’s side), under the cover.

Fuse box diagram

Assignment of the fuses in the Instrument Panel Fuse Box
| № | Consumer | Amp. |
|---|---|---|
| 1 | Horn | 15 A |
| 2 | Electric steering lock ESTL (electronic ignition switch EIS) | 25 A |
| 3 | Terminal 30 Z. vehicles with gasoline engine/electronic ignition switch ElS/instrument cluster | 10 A |
| 4 | Light switch/center console switch unit | 5 A |
| 5 | Windshield wipers | 30 A |
| 6 | Fuel pump | 15 A |
| 7 | MRM (Jacket tube module) | 5 A |
| 8 | Terminal 87 (2) | 20 A |
| 9 | Terminal 87 (3) | 20 A |
| 10 | Terminal 87 (4) | 10 A |
| 11 | Terminal 15 R vehicle | 15 A |
| 12 | Airbag control unit | 10 A |
| 13 | Cigarette lighter/glove box lighting/radio | 15 A |
| 14 | Diagnostic socket/light switch/instrument cluster | 5 A |
| 15 | Front heating system | 5 A |
| 16 | Terminal 87 (1) | 10 A |
| 17 | Airbag control unit | 10 A |
| 18 | Terminal 15 vehicle, brake lamp switch | 7.5 A |
| 19 | Interior lights | 7.5 A |
| 20 | Power window co-driver’s side/terminal 30/2 signal acquisition and actuation module SAM | 25 A |
| 21 | Engine control unit | 5 A |
| 22 | Antilock Brake System (ABS) | 5 A |
| 23 | Starter motor | 25 A |
| 24 | Diesel engine components | 10 A |
| 25 | 12V socket on the bottom of the center console | 25 A |
| Fuse block F55/1 | ||
| 1 | Control panel, left door | 25 A |
| 2 | Diagnostic socket | 10 A |
| 3 | Brake system (valves) | 25 A |
| 4 | Brake system (delivery pump) | 40 A |
| 5 | Terminal 87 (5), vehicles with gasoline engine | 7.5 A |
| 6 | Terminal 87 (6), vehicles with gasoline engine | 7.5 A |
| 7 | Headlamp cleaning system | 30 A |
| 8 | Anti-theft alarm system (ATA) | 15 A |
| 9 | Unassigned | n |
| Fuse block F55/2 | ||
| 10 | Radio | 15 A |
| 11 | Telephone | 7.5 A |
| 12 | Front blowers | 30 A |
| 13 | Unassigned | 9 |
| 14 | Seat heating/center console switch unit | 30 A |
| 15 | Non MB-body electrics | 10 A |
| 16 | Heating, rear heating/ Tempmatic (air-conditioning system), front/CD-player | 10 A |
| 17 | Motion detector/convenience interior lighting/ satellite radio | 10 A |
| 18 | Air conditioning in the rear | 7.5 A |
Fuse Box under driver’s seat
Fuse box diagram

Assignment of the fuses in the Fuse Box under driver’s seat
| № | Consumer | Amp. |
|---|---|---|
| 1 | Mirror adjustment | 5 A |
| 2 | Rear window wiper | 30 A |
| 3 | Reversing camera/ telephone | 5 A |
| 4 | Operating speed governor (ADR)/PTO/trailer connection unit AAG | 7.5 A |
| 5 | Terminal 87 electronic transmission control ETC, control unit | 10 A |
| 6 | Unassigned | – |
| 7 | Electronic selector level module ESM | 7.5/15 A |
| 8 | Terminal 15 body builder, drop side/3-way tipper | 10 A |
| 9 | Roof ventilator/audio signal equipment | 15 A |
| 10 | Terminal 30, tapping wire body builder | 25 A |
| 11 | Terminal 15, tapping wire body builder | 15 A |
| 12 | D+, tapping wire body builder | 10 A |
| 13 | Auxiliary indication modul | 10 A |
| 14 | Trailer socket | 20 A |
| 15 | Trailer recognition device | 25 A |
| 16 | Tir pressure monitoring system (TPMS)/ Parktronic system (PTS) | 7.5 A |
| 17 | PSM control unit | 25 A |
| 18 | PSM control unit | 25 A |
| 19 | Overhead control panel/ sliding sunroof | 5/25 A |
| 20 | Clearance lamps | 7.5 A |
| 21 | Rear window heating | 30/15 A |
| 22 | Rear window heating 2 | 15 A |
| 23 | 12V socket rear left, load/passenger compartment | 15 A |
| 24 | 12V socket driver’s seat base | 15 A |
| 25 | 12V socket rear right, load/passenger compart-ment/Auxiliary heating blower speed 1 | 15 A |
| 26 | Auxiliary heating | 25 A |
| 27 | Heater booster | 25/20 A |
| 28 | Air conditioning in the rear | 30 A |
| 29 | Unassigned | – |
| 30 | Unassigned | – |
| 31 | Blower unit, rear heating | 30 A |
| 32 | Unassigned | – |
| 33 | Electric sliding door, right | 30 A |
| 34 | Electric sliding door, left | 30 A |
| 35 | Brake booster | 30 A |
| 36 | Unassigned | – |
Advertisements
Pre-fuse box
Pre-fuse box is located in the battery compartment in the footwell on the left-hand side of the vehicle F59 (remove the lining and metal cover in front of the driver’s seat)

| № | Consumer | Amp. |
|---|---|---|
| 1 | Pre-glow relay/secondary air pump | 80/40 A |
| 2 | Engine fan air-conditioning system | 80 A |
| 3 | Signal acquisition and actuation module SAM/fuse and relay block SRB | 80 A |
| 4 | Auxiliary battery in the engine compartment | 150 A |
| 5 | Termina130 fuse boxes, signal acquisition and actuation module SAM/fuse and relay block SRB | 150 A |
| 6 | Connecting point in driver’s seat base | Bridge |
| 7 | Heater booster (PTC) | 150 A |


