This article deals with the second generation BMW 6 Series (E63, E64), produced from 2003 to 2010. Here you will find the BMW 6 Series (630i, 635d, 645Ci, 650i, M6) 2003, 2004, 2005, 2006, 2007, 2008, 2009 and 2010 fuse box images, information on the location of the fuse boxes inside the car and the allocation of the individual fuses (fuse layout).
Instrument Panel Fuse Box
Fuse Box Location

To access:
- Press the button on the back in the center of partition 1 and pull out the partition upward, arrow 2.
- Press the coupling downward, arrow 3, and fold the lid 4 forward.
Spare fuses, information on fuse allocation and a pair of plastic tweezers are located in the compartment for the onboard tool kit, in the luggage compartment under the floor mat.
Fuse Box Diagram

Assignment of the fuses in the instrument panel fuse box
| № | Amps | Circuits protected |
|---|---|---|
| 1 | 50A | Dynamic stability control (DSC) |
| 2 | 60A | Petrol: Secondary air pump relay Diesel: Fuel heater |
| 3 | 40A | Blower output stage |
| 4 | 20A/40A | 2004-2005: Active steering 2005-2010: Power-saving relay, electronic damper control |
| 5 | 50A | Light module |
| 6 | 50A | Light module |
| 7 | 50A | Car access system |
| 7 | 30A | Ignition / starter electronic |
| 8 | 60A | N62: Integrated supply module (IVM) |
| 8 | 60A | N62 with SMG: Fuse carrier, engine electronics (F01: Hydraulic pump relay, SMG) |
| 8 | 60A | S85: B+ potential distributor DME relay Fuse carrier, engine electronics (F01) |
| 8 | 60A | N52: B+ potential distributor DME control unit DME relay Fuse carrier, engine electronics: F05: Relay, fuel injectors F07: VVT relay F08: Hydraulic pump relay, SMG F010: Engine breather heating relay |
| 9 | 60A | Electric fan |
| 10 | 30A | 2004-2005: Driver’s door module 2005-2010: Body-gateway module (LHD: window lift, driver’s side; RHD: window lift, passenger’s side) |
| 11 | 5A | Basic body module (central locking system, window lift, windscreen wiper relay) |
| 12 | 30A | 2004-2005: Passenger’s door module 2005-2010: Body-gateway module (LHD: window lift, passenger’s side; RHD: window lift, driver’s side) |
| 13 | 7.5A | 2004-2005: Instrument cluster control unit |
| 13 | 30A | VTG transfer case; 2005-2010: Control unit, transfer box |
| 13 | 15A | S85; 2005-2010: Sequential manual transmission (SMG) |
| 14 | 30A | Seat module, front right (not semi-electric basic seat) Switch, passenger’s seat adjustment (RHD; semi-electric basic seat) Passenger’s lumbar support switch (RHD; semi-electric basic seat) Switch, driver’s seat adjustment (LHD; semi-electric basic seat) Driver’s lumbar support switch (LHD; semi-electric basic seat) |
| 15 | 5A | Car access system |
| 16 | 30A | Windscreen wiper relay |
| 17 | 15A | S85; 2004-2005: Sequential manual transmission (SMG) |
| 17 | 5A | 2005-2010: Steering column switch cluster |
| 18 | 30A | 2004-2005: Relay, headlight washer 2005-2010: Body-gateway module |
| 19 | 5A | USA: Gear indicator lighting S85: EDC Electronic damper control |
| 20 | 20A | SHZH independent/auxiliary heater: Heater Independent auxiliary heater EDC Damper Control: Power-saving relay, electronic damper control |
| 21 | 30A | Seat module, front right (not semi-electric basic seat) Switch, driver’s seat adjustment (RHD; semi-electric basic seat) Driver’s lumbar support switch (RHD; semi-electric basic seat) Switch, passenger’s seat adjustment (LHD; semi-electric basic seat) Passenger’s lumbar support switch (LHD; semi-electric basic seat) |
| 22 | 30A | Basic body module (LHD: window lift rear, driver’s side; RHD: window lift rear, passenger’s side) |
| 23 | 30A | S85; 2005-2010: Relay, electric vacuum pump |
| 24 | 30A | Basic body module (LHD: window lift rear, passenger’s side; RHD: window lift rear, driver’s side) |
| 25 | 30A | Dynamic stability control (DSC) |
| 26 | 7.5A | IHKA Basic: Heating/air conditioning system |
| 26 | 20A | 2005-2010: Power-saving relay, terminal 15 |
| 27 | 30A | Basic body module (central locking system) |
| 28 | 20A | Steering column switch cluster |
| 29 | 10A | OBD-II socket Airbag |
| 30 | 15A | IHKA High: Heating/air conditioning system |
| 30 | 20A | Fuel pump output stage Fuel pump relay |
| 31 | 30A | LHD: Seat module, front left (heated, active backrest-width adjustment, active seat) RHD: Seat module, front right (heated, active backrest-width adjustment, active seat) |
| 32 | 10A | 2004-2005: Dynamic drive |
| 32 | 10A | S85; 2004-2005: Relay, electric vacuum pump |
| 32 | 10A | 2005-2010: Switch block, driver’s door Electrochromic outside mirror, driver’s side Electrochromic outside mirror, passenger’s side |
| 33 | 30A | Centre console switch centre LHD: Seat module, front right (heated, active backrest-width adjustment, active seat) RHD: Seat module, front left (heated, active backrest-width adjustment, active seat) |
| 34 | 20A/30A | CCC/M-ASK |
| 35 | 5A | Navigation system |
| 36 | 7.5A | Comfort access control unit Outer door handle electronic module (driver’s side, passenger’s side) Electronic outer door handle modul (rear left, rear right) |
| 37 | 5A/10A | 2004-2007: TCU (telematics control unit) ULF (universal charging & hands-free unit) Eject box |
| 37 | 5A | 2007-2010: ULF-SBX interface box TCU (telematics control unit) ULF-SBX-H interface box High USB hub Eject box |
| 38 | 5A/10A | CD changer |
| 39 | – | Not used |
| 40 | 10A | DVD changer |
| 41 | 5A | 2005-2010: Instrument cluster control unit |
| 42 | 15A | S85: Sequential manual transmission (SMG) |
| 43-46 | – | Not used |
Luggage Compartment Fuse Box
Fuse Box Location
Fold up the cover under the floor mat and remove the bracket for the onboard tool kit. Information on fuse allocation 1 and additional fuses 2 are provided there.

Fuse Box Diagram
2004-2005

2005-2010

Reverse side

Assignment of the fuses in the luggage compartment
| № | Amps | Circuits protected |
|---|---|---|
| 50 | 20A | M54, N62: Fuel pump relay N52, diesel: Fuel pump control (EKPS) S85: Fuel pump output stage |
| 50 | 30A | 2005-2010: Headlight washer pump |
| 51 | 5A | Siren and tilt alarm sensor Electrochromic interior rear view mirror Microwave sensors |
| 52 | 10A | Micro-power module |
| 52 | 40A | E64: Relay, convertible top 1-2 |
| 53 | 7.5A | 2004-2005: Automatic soft-close drive, boot lid/tailgate Comfort access control unit Outer door handle electronic module (driver’s side, passenger’s side) Electronic outer door handle module (rear left, rear right) |
| 53 | 30A | 2005-2010: Active backrest width adjustment (driver, passenger) |
| 54 | 20A | 2004-2005: Power-saving relay, terminal 15 |
| 54 | 40A | 2005-2010: Rear window defogger |
| 55 | 5A | 2004-2005: Rain/headlight sensor |
| 55 | 40A | 2005-2010: Boot lid lift |
| 56 | 5A | 2005-2010: Rain/headlight sensor |
| 57 | 20A | 2004-2005: Micro-power module |
| 57 | 5A | IHKA Basic; 2005-2010: Heating/air conditioning system |
| 58 | 40A | 2004-2005: Rear window defogger |
| 58 | 20A | 2005-2010: Rear wiper relay |
| 59 | 5A | Aerial tuner with remote control receiver |
| 60 | 5A | 2005-2010: Rollover protection controller |
| 61 | 20A | 2004-2005: Front cigar lighter Charging socket, glovebox |
| 61 | 7.5A | 2005-2010: Cooler box |
| 62 | 5A | 2004-2005: Power-saving relay, terminal 15 |
| 62 | 30A | 2005-2010, E64: Relay for lowering rear window Relay for raising rear window |
| 63 | 5A | 2004-2005: Electrochromic interior rear view mirror Park distance control (PDC) |
| 63 | 20A | 2005-2010: Independent auxiliary heater |
| 64 | 10A | 2004-2005: Rear compartment display Central information display Controller |
| 64 | 15A | IHKA High; 2005-2010: Heating/air conditioning system |
| 65 | 10A | 2004-2005: Headset connection module Head-up display |
| 66 | 5A | 2004-2005: Dynamic stability control (DSC) VTG Transfer case: Dynamic stability control (DSC), Control unit, transfer box |
| 66 | 20A | E63: Panorama glass roof E64: Convertible top module |
| 67 | 10A | 2004-2006: Video module Satellite receiver |
| 67 | 20A | 2006-2010: Automatic soft-close drive, passenger’s door (LHD) Automatic soft-close drive, driver’s door (RHD) Automatic soft-close drive, rear right |
| 68 | 5A | 2004-2006: Centre console switch centre Switch, driver’s seat adjustment Switch, passenger’s seat adjustment |
| 68 | 20A | 2006-2010: Automatic soft-close drive, driver’s door (LHD) Automatic soft-close drive, passenger’s door (RHD) Automatic soft-close drive, rear left |
| 69 | 5A | Park distance control (PDC) |
| 70 | 5A | 2004-2005: Adaptive headlight |
| 70 | 10A | 2005-2007: Active cruise control |
| 70 | 10A | 2007-2010: Active cruise control Far-range sensor Close-range sensors (left, right) |
| 71 | 20A | 2004-2005, S85: Fuel pump output stage |
| 71 | 30A | 2005-2010: Centre console switch centre |
| 72 | 40A | 2004-2005, E64: Relay, convertible top 1-2 |
| 72 | 20A | N62: Fuel pump relay Diesel: Fuel pump control (EKPS) |
| 73 | 30A | 2004-2005, E63: Relay for lowering rear window Relay for raising rear window Trailer module |
| 73 | 30A/40A | 2005-2010: Hifi amplifier |
| 74 | 20A | 2004-2005: Trailer socket |
| 74 | 10A | 2005-2010: Centre console switch centre Switch, seat adjustment (driver, passenger) |
| 75 | 30A | 2004-2005: Control unit, transfer box |
| 75 | 10A | 2005-2010: Satellite receiver Digital tuner Video module |
| 76 | 40A | 2004-2005: Boot lid lift |
| 76 | 10A | 2005-2010: Dynamic drive |
| 77 | 5A | 2004-2005: Aerial tuner with remote control receive |
| 77 | 10A | 2005-2010: Head-up display Headset connection module |
| 78 | 5A | 2005-2010: Dynamic stability control (DSC) Control unit, transfer box |
| 79 | 7.5A | 2004-2005: Electronic ride height control |
| 79 | 10A | 2005-2010: Central information display Controller |
| 80 | 30A | 2004-2005: HiFi amplifier |
| 80 | 10A | 2005-2010: Selector lever Gear indicator lighting Eject box TCU (telematics control unit) Compensator (mobile phone) Fan, spare wheel well Electronic night vision module |
| 81 | 7.5A | 2005-2010: Electronic ride height control |
| 82 | 20A | 2004-2005: Luggage compartment socket outlet Rear cigarette lighter Socket outlet, rear |
| 82 | 7.5A | 2005-2010: Tyre pressure control (RDC) |
| 83 | 20A | 2004-2005, E63: Panorama glass roof 2004-2005, E64: Convertible top module |
| 83 | 30A | 2005-2010: Active backrest width adjustment, driver (LHD) Active backrest width adjustment, passenger (RHD) |
| 84 | 10A | 2004-2005: Active cruise control |
| 84 | 15A | 2005-2010: Transmission control Sequential manual transmission (SMG) |
| 85 | 7.5A | 2005-2010: Sequential manual transmission (SMG) |
| 86 | 15A | 2004-2005: Transmission control Sequential manual transmission (SMG) |
| 86 | 40A | 2005-2010: Active steering |
| 87 | 20A | 2005-2010: Front cigar lighter Charging socket, glovebox |
| 88 | 30A | 2004-2005: Centre console switch centre |
| 88 | 20A | 2005-2010: Luggage compartment socket outlet Rear cigarette lighter Socket outlet, rear |
| 89 | 10A | 2004-2005: Fan, MMC Gear indicator lighting Selector lever Gear indicator lighting Fan, spare wheel well TCU (telematics control unit) ULF (universal charging & hands-free unit) Eject box |
| 89 | 5A | 2005-2010: Electrochromic interior rear view mirror Power-saving relay, terminal 15 |
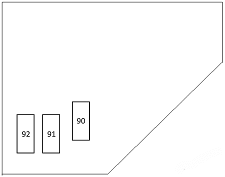
| 90 | 200A | Fuse holder, front (fuse 1-33) |
| 91 | 100A | Diesel: DDE main relay N62, TU: Integrated supply module (IVM) VVT relays 1-2 Variable valve timing gear control unit |
| 92 | 100A | Electric auxiliary heater |


