The Alfa Romeo MiTo three-door supermini (type 955) was produced from 2008 to 2018. Here you can find the 2014, 2015, 2016 and 2017 Alfa Romeo MiTo fuse box outline, get information on the location of the fuse boxes in the car and learn about the assignment of each fuse (fuse layout).
In the Alfa Romeo MiTo, the fuses for the cigarette lighter/socket are №F85 in the engine compartment (tunnel socket) and №F3 in the boot (boot socket).
Fuse box location
Engine compartment
This is located next to the battery.

To access, undo screws A and remove cover B.

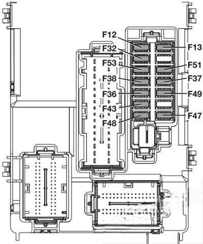
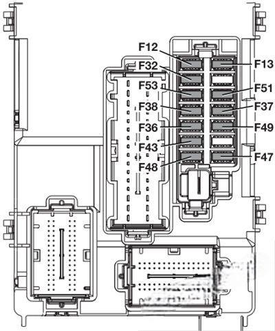
Dashboard fuse box

To access the fuses, lower the flap A, hold the cover B with one hand in the area indicated in the figure and remove it in the direction indicated by the arrow to release the internal brackets C and then the tabs D.

Luggage compartment
It is located on the left side of the luggage compartment underneath the cover.

To access, open the relevant inspection lid as illustrated in figure
Fuse box diagrams
2014
Engine compartment

Assignment of the fuses in the engine compartment (2014)
| № | AMPS | DEVICE PROTECTED |
|---|---|---|
| F03 | 20 | Starter |
| F08 | 40 | Passenger compartment electric fan |
| F09 | 5 | Additional heater (Turbo TwinAir 105 HP and 1.3 JTD M . 2 85 HP versions) |
| F10 | 15 | Two-tone horns |
| F14 | 15 | Main beam headlights |
| F15 | 30 | Additional heater (PTC 1) |
| F19 | 7,5 | Air conditioning compressor |
| F20 | 30 | Heated rear windscreen, defrosting system |
| F21 | 15 | Electric fuel pump in tank |
| F30 | 15 | Fog lights |
| F81 | 60 | Additional heater (PTC2) |
| F82 | 40 | Additional heater (PTC1) |
| F82 | 50 | Additional heater (PTC2) |
| F83 | – | Free |
| F84 | 20 | HI-FI sound system (control units, Bassbox speaker) mechanical gearbox setup |
| F85 | 15 | Power socket on tunnel |
| F87 | 7,5 | Electric door mirror demisters, demisters on windscreen jets, relay switch coil for heated windscreen |
Dashboard

Assignment of the fuses in the Dashboard fuse box (2014)
| № | AMPS | DEVICE PROTECTED |
|---|---|---|
| F12 | 7,5 | Right dipped beam headlight |
| F13 | 7,5/5 | Left dipped beam headlight |
| F13 | 7,5 | Headlight alignment adjustment system |
| F32 | 5 | Front roof light, Luggage compartment roof light, Sun visor courtesy light, Door puddle lights, Glove compartment light |
| F36 | 10 | Radio, sound system setup system (for versions/markets, where provided), Uconnect™ 5″ radio (for versions/markets, where provided), climate control system control unit, alarm system control unit, volumetric system control unit, EOBD external diagnosis socket, tyre pressure monitoring control unit |
| F37 | 5 | Instrument panel, brake light on switch |
| F38 | 15 | Door lock motor on doors, Safe Lock motor on doors, Tailgate unlocking motor |
| F43 | 20 | Windscreen/rear window washer pump |
| F47 | 20 | Electric window motor complete with control unit (driver side door) |
| F48 | 20 | Electric window motor complete with control unit (passenger side door) |
| F49 | 5 | Parking sensor control unit, rain/dusk sensor on interior rear view mirror, electrochromic sensor on interior rear view mirror, seat belts fastened warning light display on interior rear view mirror, control panel lighting (central control panel, driver side control panel, control panel on steering wheel), heater pad activation switches on front seats, alarm system volumetric sensor control unit, electric sun roof control unit |
| F51 | 5 | Clutch activation switch, brake light switch, relay switch coils on engine fuse box control unit, control system on internal climate control/heater unit, flow meter, water presence in diesel sensor, radio, radio setup system (for versions/markets, where provided) |
| F53 | 5 | Instrument panel |
Luggage compartment

Assignment of the fuses in the Luggage compartment
| № | AMPS | DEVICE PROTECTED |
|---|---|---|
| F1 | 20 | Electric roof opening system |
| F3 | 15 | Luggage compartment power socket |
| F6 | 15 | Front seat heater |
2015, 2016
Engine compartment

Assignment of the fuses in the engine compartment (2015, 2016)
| № | AMPS | DEVICE PROTECTED |
|---|---|---|
| F03 | 20 | Starter |
| F08 | 40 | Passenger compartment electric fan |
| F09 | 5 | Additional heater (Turbo TwinAir 105 HP and 1.3 JTD M . 2 85 HP versions) |
| F10 | 15 | Two-tone horns |
| F14 | 15 | Main beam headlights |
| F15 | 30 | Additional heater (PTC 1) |
| F19 | 7,5 | Air conditioning compressor |
| F20 | 30 | Heated rear windscreen, defrosting system |
| F21 | 15 | Electric fuel pump in tank |
| F30 | 15 | Fog lights |
| F81 | 60 | Additional heater (PTC2) |
| F82 | 40 | Additional heater (PTC1) |
| F82 | 50 | Additional heater (PTC2) |
| F83 | – | Free |
| F84 | 20 | HI-FI sound system (control units, Bassbox speaker) mechanical gearbox setup |
| F85 | 15 | Power socket on tunnel |
| F87 | 7,5 | Electric door mirror demisters, demisters on windscreen jets, relay switch coil for heated windscreen |
Dashboard

Assignment of the fuses in the Dashboard fuse box (2015, 2016)
| № | AMPS | DEVICE PROTECTED |
|---|---|---|
| F12 | – | Available |
| F13 | 5 | Headlamp alignment corrector |
| F31 | 5 | INT/A relay for engine compartment junction unit |
| F36 | 15 | EOBD diagnosis port supply, radio, Bluetooth®, radionavigator (where provided), alarm siren; alarm volumetric sensors, electric fan, TPMS, electric mirror controls, climate control system controls |
| F37 | 5 | Brake light switch (NO), instrument panel node, headlight alignment corrector |
| F38 | 15 | Doors and luggage compartment central locking |
| F43 | 20 | Windscreen/rear window washer pump |
| F47 | 20 | Electric window (driver side) |
| F48 | 20 | Electric window (passenger side) |
| F49 | 5 | Parkinq sensors, control lighting, electrochromic mirror, rain/dusk sensor, soft top, TMPS; cigar lighterlighting, SBR system panel |
| F51 | 5 | Climate control system controls, radio preparation system; Bluetooth®, brake light switch (NC), clutch switch, reverse switch, flow meter (diesel versions), water in diesel filter sensor (diesel versions) |
| F53 | 5 | Instrument Panel Node |
Luggage compartment

Assignment of the fuses in the Luggage compartment
| № | AMPS | DEVICE PROTECTED |
|---|---|---|
| F1 | 20 | Electric roof opening system |
| F3 | 15 | Luggage compartment power socket |
| F6 | 15 | Front seat heater |
2017
Engine compartment

Assignment of the fuses in the engine compartment (2017)
| № | AMPERE | DEVICE PROTECTED |
|---|---|---|
| F03 | 20 | Ignition device |
| F08 | 40 | Passenger compartment fan |
| F09 | 5 | Additional heater (Turbo TwinAir and 1.3 JTD M . 2 versions) |
| F10 | 15 | Two-tone horn |
| F14 | 15 | Main beam headlights |
| F15 | 30 | Additional heater (PTC 1) |
| F19 | 7.5 | Air conditioning compressor |
| F20 | 30 | Heated rear windscreen, demisting system |
| F21 | 15 | Electric fuel pump in tank |
| F30 | 15 | Front fog lights |
| F81 | 60 | Additional heater (PTC2) |
| F82 | 50 | Additional heater (PTC1) |
| F82 | 40 | Additional heater (PTC2) |
| F83 | – | Free |
| F84 | 20 | HI-FI sound system (control units, Bassbox speaker) mechanical gearbox setup |
| F85 | 15 | Power socket on tunnel |
| F87 | 7.5 | Electric door mirror demisters / Demisters on windscreen jets / Relay switch coil for heated windscreen |
Dashboard

Assignment of the fuses in the Dashboard fuse box (2017)
| № | AMPERE | DEVICE PROTECTED |
|---|---|---|
| F12 | – | Free |
| F13 | 5 | Headlamp alignment corrector |
| F31 | 5 | INT/A Engine compartment control unit relays |
| F36 | 15 | EOBD diagnosis plug supply / Uconnect/ Alarm buzz / Alarm volumetric sensors / Electrofan /TPMS system / Electric mirror controls/Climate control system controls |
| F37 | 5 | Brake light switch (NA) / Instrument panel node / Headlight alignment corrector |
| F38 | 15 | Doors and luggage compartment central locking |
| F43 | 20 | Windscreen/rear window washer pump |
| F47 | 20 | Electric window (driver side) |
| F48 | 20 | Electric window (passenger side) |
| F49 | 5 | Parking sensors / Control lighting/ Electro-chrome mirror / Rain/dusk sensor / Sun roof / TPMS system /Cigar lighter lighting/SBR system panel |
| F51 | 5 | Climate control system controls / Radio system configuration / Bluetooth / Brake light switch (NC) / Clutch switch / Reverse gear switch / Airflow meter (Diesel versions) / Water in diesel filter sensor (Diesel versions) |
| F53 | 5 | Instrument panel node |
Luggage compartment

Assignment of the fuses in the Luggage compartment
| № | AMPS | DEVICE PROTECTED |
|---|---|---|
| F1 | 20 | Electric roof opening system |
| F3 | 15 | Luggage compartment power socket |
| F6 | 15 | Front seat heater |


