This article is about the third generation Acura TL (UA6-UA7), produced from 2004 to 2008. Here you will find the Acura TL 2004, 2005, 2006, 2007 and 2008 fuse box diagrams, information on the location of the fuse boxes inside the car and the assignment of each fuse (fuse layout).
The Acura TL’s cigar lighter/power socket fuse is fuse №9 in the passenger compartment fuse box.
Fuse box location
The interior fuse box is on the driver’s lower left side.
To remove the fuse box lid, put your finger in the notch on the lid, pull it toward you, and take it out of its hinges.

The under-hood fuse box is on the driver’s side next to the air cleaner housing

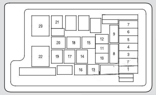
version 1

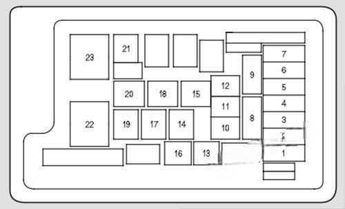
version 2

Fuse box diagrams
2004, 2005, 2006
Engine compartment

Assignment of the fuses in the engine compartment (2004-2006)
| No. | Amps. | Circuits Protected |
|---|---|---|
| 1 | 15 A | Left Headlight Low Beam |
| 2 | 30 A | Rear Defroster Coil |
| 3 | 7.5 A | Left Headlight High Beam |
| 4 | 10 A | Small Light |
| 5 | 7.5 A | Right Headlight High Beam |
| 6 | 15 A | Right Headlight Low Beam |
| 7 | 7.5 A | Back Up |
| 8 | 15 A | IGP |
| 9 | 30 A | Condenser Fan |
| 10 | 20 A | Front Fog Light (U.S. models) |
| 10 | 15 A | Daytime Running Light (Canadian models) |
| 11 | 30 A | Radiator Fan Motor |
| 12 | 7.5 A | MG Clutch Relay |
| 13 | 20 A | Horn, Stop |
| 14 | 40 A | Rear Defroster |
| 15 | 40 A | Back UP, ACC |
| 16 | 15 A | Hazard Warning |
| 17 | 30 A | VSA Pump Motor Relay |
| 18 | 40 A | VSA Fail Safe Relay |
| 19 | 40 A | FI ECU (ECM/PCM) |
| 20 | 40 A | Power Seat |
| 21 | 40 A | Heater Motor |
| 22 | 120 A | Battery |
| 23 | 50 A | IGI Main |
Passenger compartment

Assignment of the fuses in the Passenger compartment (2004-2006)
| No. | Amps. | Circuits Protected |
|---|---|---|
| 1 | 15 A | DBW |
| 2 | 15 A | IG1 Coil |
| 3 | — | Not Used |
| 4 | 15 A | LAF |
| 5 | 20 A | Radio |
| 6 | 7.5 A | Interior Lights |
| 7 | 7.5 A | Back Up |
| 8 | 20 A | Door Lock |
| 9 | 15 A | Accessory Socket |
| 10 | 7.5 A | IG1 OPDS |
| 11 | 30 A | IG1 Wiper |
| 12 | 7.5 A | TPMS |
| 13 | 20 A | Passenger’s Power Seat (Recline) |
| 14 | 20 A | Driver’s Power Seat (Slide) |
| 15 | 20 A | Seat Heater |
| 16 | 20 A | Driver’s Power Seat (Recline) |
| 17 | 20 A | Passenger’s Power Seat (Slide) |
| 18 | 15 A | IG1 ACG |
| 19 | 15 A | IG1 Fuel Pump |
| 20 | 15 A | Washer |
| 21 | 7.5 A | Meter |
| 22 | 10 A | SRS |
| 23 | 7.5 A | IGP |
| 24 | 20 A | Rear Left Power Window |
| 25 | 20 A | Rear Right Power Window |
| 26 | 30 A | Front Right Power Window |
| 27 | 30 A | Front Left Power Window |
| 28 | 20 A | Moonroof |
| 29 | 7.5 A | VBSOL |
| 30 | 7.5 A | HAC |
| 31 | 7.5 A | OP2 |
| 32 | 7.5 A | ACC |
| 33 | 7.5 A | HAC OP |
2007, 2008
Engine compartment

Assignment of the fuses in the engine compartment (2007, 2008)
| No. | Amps. | Circuits Protected |
|---|---|---|
| 1 | 15 A | Left Headlight Low Beam |
| 2 | 30 A | Rear Defroster Coil |
| 3 | 7.5 A | Left Headlight High Beam |
| 4 | 10 A | Small Light |
| 5 | 7.5 A | Right Headlight High Beam |
| 6 | 15 A | Right Headlight Low Beam |
| 7 | 7.5 A | Back Up |
| 8 | 15 A | FI ECU |
| 9 | 30 A | Condenser Fan |
| 10 | 10 A | Fog Light |
| 11 | 30 A | Radiator Fan Motor |
| 12 | 7.5 A | MG Clutch Relay |
| 13 | 20 A | Horn, Stop |
| 14 | 40 A | Rear Defroster |
| 15 | 40 A | Back UP, ACC |
| 16 | 15 A | Hazard Warning |
| 17 | 30 A | VSA Pump Motor Relay |
| 18 | 40 A | VSA Fail Safe Relay |
| 19 | 40 A | FI ECU (ECM/PCM) |
| 20 | 40 A | Power Seat |
| 21 | 40 A | Heater Motor |
| 22 | 120 A | Battery |
| 23 | 50 A | IGI Main |
Passenger compartment

Assignment of the fuses in the Passenger compartment (2007, 2008)
| No. | Amps. | Circuits Protected |
|---|---|---|
| 1 | 15 A | DBW |
| 2 | 15 A | IG1 Coil |
| 3 | 15 A | Daytime Running Light |
| 4 | 15 A | LAF |
| 5 | 20 A | Radio |
| 6 | 7.5 A | Interior Lights |
| 7 | 7.5 A | Back Up |
| 8 | 20 A | Door Lock |
| 9 | 15 A | Accessory Socket |
| 10 | 7.5 A | IG1 OPDS |
| 11 | 30 A | IG1 Wiper |
| 12 | 7.5 A | TPMS |
| 13 | 20 A | Passenger’s Power Seat (Recline) |
| 14 | 20 A | Driver’s Power Seat (Slide) |
| 15 | 20 A | Seat Heater |
| 16 | 20 A | Driver’s Power Seat (Recline) |
| 17 | 20 A | Passenger’s Power Seat (Slide) |
| 18 | 15 A | IG1 ACG |
| 19 | 15 A | IG1 Fuel Pump |
| 20 | 15 A | Washer |
| 21 | 7.5 A | Meter |
| 22 | 10 A | SRS |
| 23 | 7.5 A | IGP |
| 24 | 20 A | Rear Left Power Window |
| 25 | 20 A | Rear Right Power Window |
| 26 | 30 A | Front Right Power Window |
| 27 | 30 A | Front Left Power Window |
| 28 | 20 A | Moonroof |
| 29 | 7.5 A | VBSOL |
| 30 | 7.5 A | HAC |
| 31 | 7.5 A | OP2 |
| 32 | 7.5 A | ACC |
| 33 | 7.5 A | HAC OP |


